Please wait while we get necessary data.
Goal
$49,200.00
$11,980.80
This calculation is a forecast, not a guarantee.
$11,980.80
This calculation is a forecast, not a guarantee.
Area
20.5 m²
Token price
$24.00
Investors
1 investors
Start of income from rent
Q4 2026
Total raised
$4,992.00
/
$49,200.00
10%
Goal
$49,200.00
Area
20.5 m²
Token price
$24.00
Investors
1 investors
Start of income from rent
Q4 2026
Total raised
$4,992.00
/
$49,200.00
10%
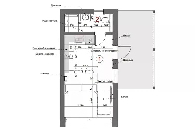
Компактний дизайнерський будинок площею 20 м², розрахований на 2 спальні місця. Завдяки продуманому плануванню на невеликій площі комфортно розміщені:
Будинок має терасу та велике видовe вікно, що створює відчуття простору та відкриває краєвиди на природу.
У будівництві використані преміальні матеріали: натуральне дерево та якісний словацький метал. Будинок також оснащений кондиціонером, повноцінною кухнею та преміальною сантехнікою Grohe, що забезпечує високий рівень комфорту для гостей.
Такий формат будинку ідеально підходить для короткострокового відпочинку двох гостей та орендного бізнесу.